Duplex-dakappartement op de derde en vierde verdieping van de nieuwe residentie "Stan" te Heist-aan-Zee. Een bruikbare vloeroppervlakte van 95 m² + zongericht terras. Energielabel A, zeer energiezuinig. Aankopen aan 6 % BTW is mogelijk.

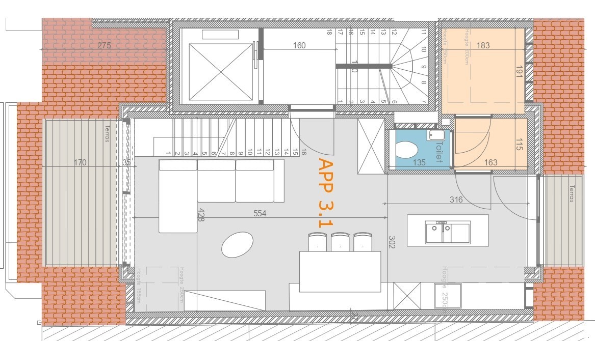
Een super leuk derde verdiep met de leefruimte en de keuken. De leefruimte geeft uit op het terras aan de straatkant. Op dit terras kan een tafel geplaatst worden. De keuken is open en ligt achteraan het appartement. Hier een tweede terras met de ochtendzon. Op deze verdieping verder een bergruimte/wasplaats en een toilet. In de dakverdieping twee slaapkamers en een ingerichte badkamer .

Afwerking naar keuze van de klant kan op vandaag nog. Aankopen aan 6 % BTW is ook nog mogelijk. Een appartement zonder bovenburen, rustig met een mooi open zicht voor en achteraan. Voor de fietsen is een gemeenschappelijke stalling voorzien, indien gewenst kunt u een parking aankopen in het gebouw.

Wenst u meer informatie over deze residentie of dit appartement? Contacteer Willem Cauwels op tel 050.89.27.70

Algemeen

Adres:Heist-aan-Zee
Vraagprijs:€ 498.000
Type:Duplex
Beschikbaar vanaf:Bij oplevering
Bewoonbare opp.:95 m²
Bouwjaar:2026
Op verdieping:3
Algemene staat:Luxe-afwerking

Indeling

Kamers:2
Slaapkamers:2
Badkamers:1
Keuken:Ja, Open keuken, Ingericht met toestellen
Berging:Ja
Terras:Ja
Wasplaats:Ja

Wettelijke gegevens

EPC E-peil:30,00
Stedenbouwkundige vergunning:Ja
Voorkooprecht:Neen
Verkavelingsvergunning van toepassing:Neen
Stedenbouwkundige bestemming:Woongebied
Dagvaarding en herstelvordering:Geen rechterlijke herstelmaatregel of bestuurlijke maatregel opgelegd
Overstromingsgevoelig:Geen overstromingsgevoelig gebied
Overstromingsgebied:Geen afgebakende zones
Overstromingskans perceel (P-score):A
Overstromingskans gebouw (G-score):A
Erfgoed:Geen beschermd erfgoed

€ 498 000


U moet akkoord gaan met het privacybeleid van deze website
* Verplicht in te vullen

€ 498 000

€ 498 000