Halfopen woning met ontzettend veel potentieel, rustig gelegen te Lissewege (Zwankendamme).
De ruwbouwwerken zijn grotendeels gedaan. Als koper kunt u de woning volledig naar eigen wens en smaak afwerken. De gevel is evenwel opgenomen in de lijst van vastgesteld bouwkundig erfgoed.

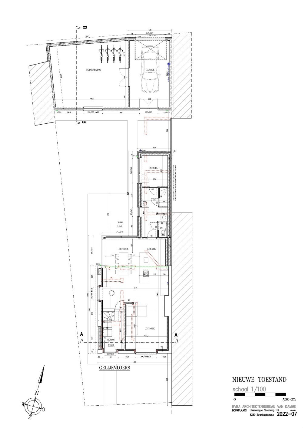
Deze grote woning beschikt over een omgevingsvergunning voor een volledige verbouwing met uitbouw en de oprichting van een gesloten garage met tuinberging.
Vergunde plannen beschikbaar via ons kantoor.

Mogelijkheid tot het creëren van een prachtige halfopen woning met een zonnige tuin en een grote garage achteraan. De garage is te bereiken via een achterliggende wegel. Een enorme troef van deze woning.

Indeling volgens de vergunde plannen:
Inkomhal met trap, een schitterende leefruimte met een zithoek en een enorme leefkeuken met eiland. In de keuken een groot schuifraam met toegang naar de tuin. Verder op het gelijkvloers nog een apart toilet, een wasplaats, een douchekamer en een apart bureau met zicht op de tuin.
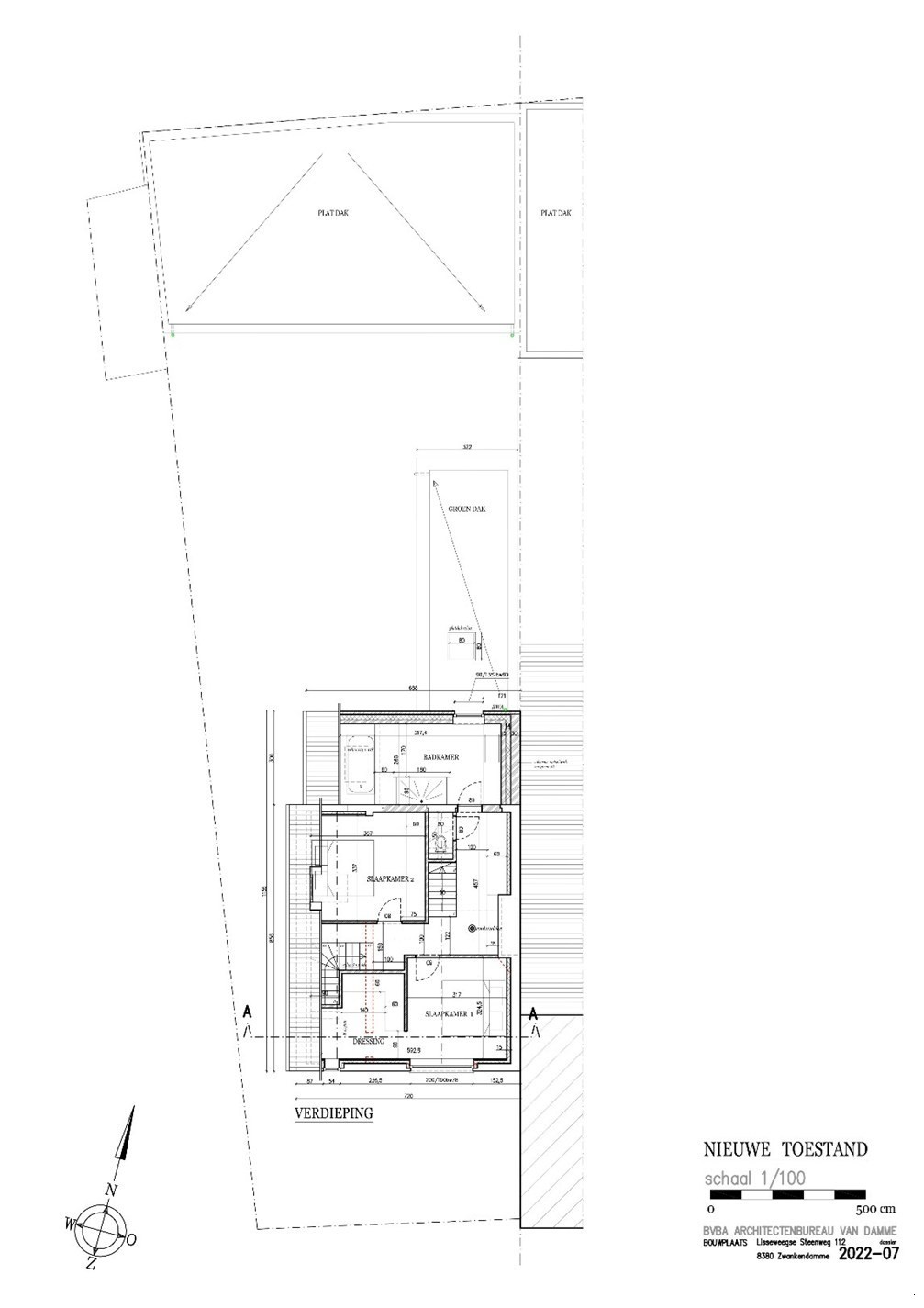
Op de eerste verdieping een masterbedroom met ensuite dressing, een tweede slaapkamer en een grote badkamer met douche en ligbad. Op de nachthall een vaste trap naar de zolderverdieping waar u nog beschikt over een derde kamer en een opbergruimte.

Huidig energielabel: F (UC: 20220331-0002575115-RES-1)
Minimaal te behalen E-peil volgens de vergunning: E60

Bezoeken of meer informatie?
Contacteer Sacha Vanrafelghem op GSM 0487/43.79.10.

Algemeen

Adres:Lisseweegse Steenweg
Lissewege
Vraagprijs:€ 195.000
Type:Woning
Beschikbaar vanaf:Bij akte
Perceeloppervlakte:314 m²
Bewoonbare opp.:172 m²
Bouwjaar:1930
Algemene staat:Te renoveren

Indeling

Kamers:3
Slaapkamers:3
Badkamers:2
Bureau:Ja
Woonkamer:Ja
Keuken:Ja, Open keuken, Ingericht met toestellen
Berging:Ja
Zolder:Ja
Terras:Ja
Wasplaats:Ja
Tuin oriëntatie:West
Tuin kwaliteit:Aan te leggen
Garage:1

Wettelijke gegevens

EPC Certificaat Nr.:20220331-0002575115-RES-1
EnergyClass:F
Renovatieplicht:Ja
Stedenbouwkundige vergunning:Ja
Voorkooprecht:Neen
Verkavelingsvergunning van toepassing:Neen
Maatregelenregister:Neen
Stedenbouwkundige bestemming:Woongebied
Dagvaarding en herstelvordering:Geen rechterlijke herstelmaatregel of bestuurlijke maatregel opgelegd
Overstromingsgevoelig:Geen overstromingsgevoelig gebied
Overstromingsgebied:Geen afgebakende zones
Overstromingskans perceel (P-score):C
Overstromingskans gebouw (G-score):B
Erfgoed:Geïnventariseerd erfgoed
Deze eigendom kan onderhevig zijn aan de renovatieverplichting die door de Vlaamse overheid wordt opgelegd voor residentiële gebouwen. Consulteer voor meer informatie de website van het Vlaams Energie- en Klimaatagentschap via https://www.vlaanderen.be/een-woning-kopen/renovatieverplichting-voor-residentiele-gebouwen
Lissewege
Lisseweegse Steenweg

€ 195 000


U moet akkoord gaan met het privacybeleid van deze website
* Verplicht in te vullen
Lissewege
Lisseweegse Steenweg

€ 195 000

Lissewege
Lisseweegse Steenweg

€ 195 000