Halfopen woning op een mooi perceel te Zwankendamme
€ 220 000
Interessante woning met ontzettend veel potentieel, rustig gelegen te Zwankendamme (naast Lissewege). Deze grote halfopen woning beschikt over een omgevingsvergunning voor een volledige verbouwing met uitbouw en de oprichting van een gesloten garage met tuinberging.
De ruwbouwwerken zijn grotendeels gedaan. Als koper kunt u de woning volledig naar eigen wens en smaak afwerken. Vergunde plannen beschikbaar via ons kantoor.
Mogelijkheid tot het creëren van een prachtige halfopen woning met een zonnige tuin en een grote garage achteraan. De garage is te bereiken via een achterliggende wegel. Een enorme troef van deze woning.
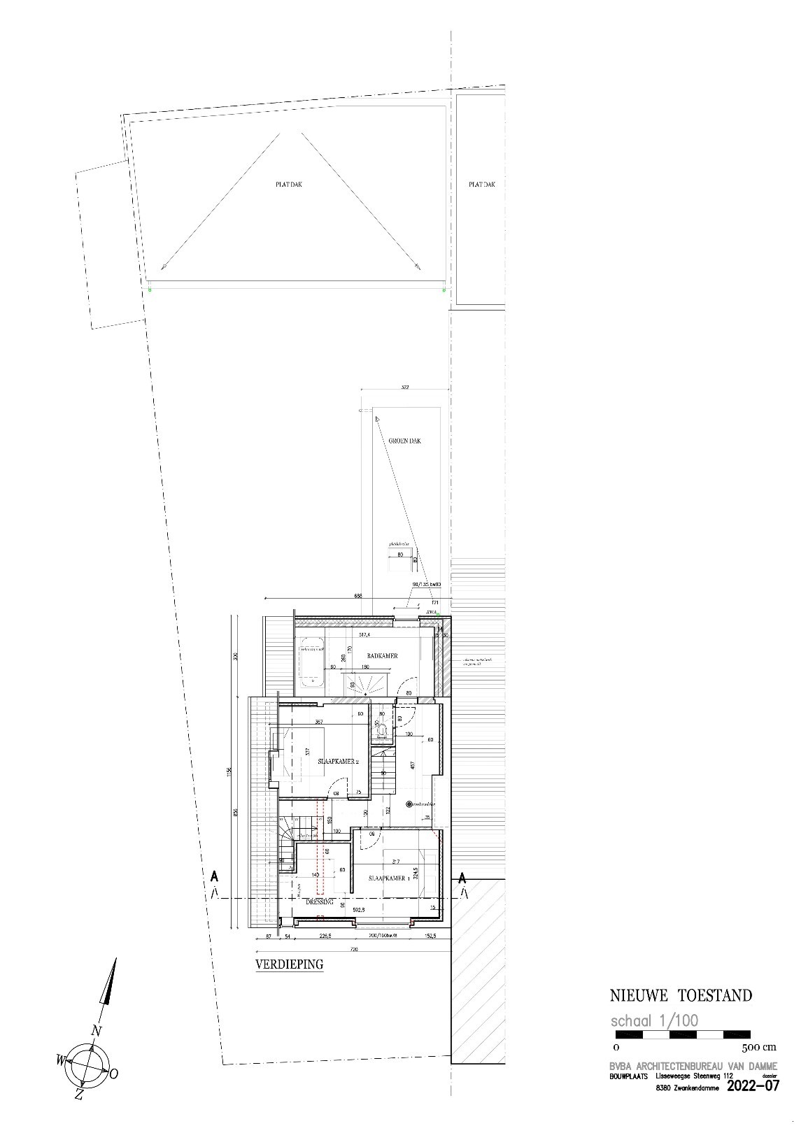
Indeling volgens de vergunde plannen:
Inkomhal met trap, een schitterende leefruimte met een zithoek en een enorme leefkeuken met eiland. In de keuken een groot schuifraam met toegang naar de tuin. Verder op het gelijkvloers nog een apart toilet, een wasplaats, een douchekamer en een apart bureau met zicht op de tuin.
Op de eerste verdieping een masterbedroom met ensuite dressing, een tweede slaapkamer en een grote badkamer met douche en ligbad. Op de nachthall een vaste trap naar de zolderverdieping waar u nog beschikt over een derde kamer en een opbergruimte.
Mooi perceel van 314 m² met een ongelooflijk potentieel.
Gevel opgenomen in de lijst van vastgesteld bouwkundig erfgoed.
Bezoeken of meer informatie?
Contacteer Sacha Vanrafelghem op GSM 0487/43.79.10.
Algemeen
| Adres: | Lisseweegse Steenweg 112 Lissewege |
| Vraagprijs: | € 220.000 |
| Type: | Woning |
| Beschikbaar vanaf: | Bij akte |
| Perceeloppervlakte: | 314 m² |
| Bewoonbare opp.: | 172 m² |
| Bouwjaar: | 1930 |
| Algemene staat: | Te renoveren |
Indeling
| Kamers: | 3 |
| Slaapkamers: | 3 |
| Badkamers: | 2 |
| Bureau: | Ja |
| Woonkamer: | Ja |
| Keuken: | Ja, Open keuken, Ingericht met toestellen |
| Berging: | Ja |
| Zolder: | Ja |
| Terras: | Ja |
| Wasplaats: | Ja |
| Tuin oriëntatie: | West |
| Tuin kwaliteit: | Aan te leggen |
| Garage: | 1 |
Wettelijke gegevens
| EPC Certificaat Nr.: | 20220331-0002575115-RES-1 |
| EPC Index: | 1664,00 kWh/(m² jaar) |
| EnergyClass: | F |
| Renovatieplicht: | Ja |
| Stedenbouwkundige vergunning: | Ja |
| Voorkooprecht: | Neen |
| Verkavelingsvergunning van toepassing: | Neen |
| Stedenbouwkundige bestemming: | Woongebied |
| Dagvaarding en herstelvordering: | Geen rechterlijke herstelmaatregel of bestuurlijke maatregel opgelegd |
| Overstromingsgevoelig: | Geen overstromingsgevoelig gebied |
| Overstromingsgebied: | Geen afgebakende zones |
| Overstromingskans perceel (P-score): | C |
| Overstromingskans gebouw (G-score): | B |
| Erfgoed: | Geïnventariseerd erfgoed |
| Deze eigendom kan onderhevig zijn aan de renovatieverplichting die door de Vlaamse overheid wordt opgelegd voor residentiële gebouwen. Consulteer voor meer informatie de website van het Vlaams Energie- en Klimaatagentschap via https://www.vlaanderen.be/een-woning-kopen/renovatieverplichting-voor-residentiele-gebouwen | |