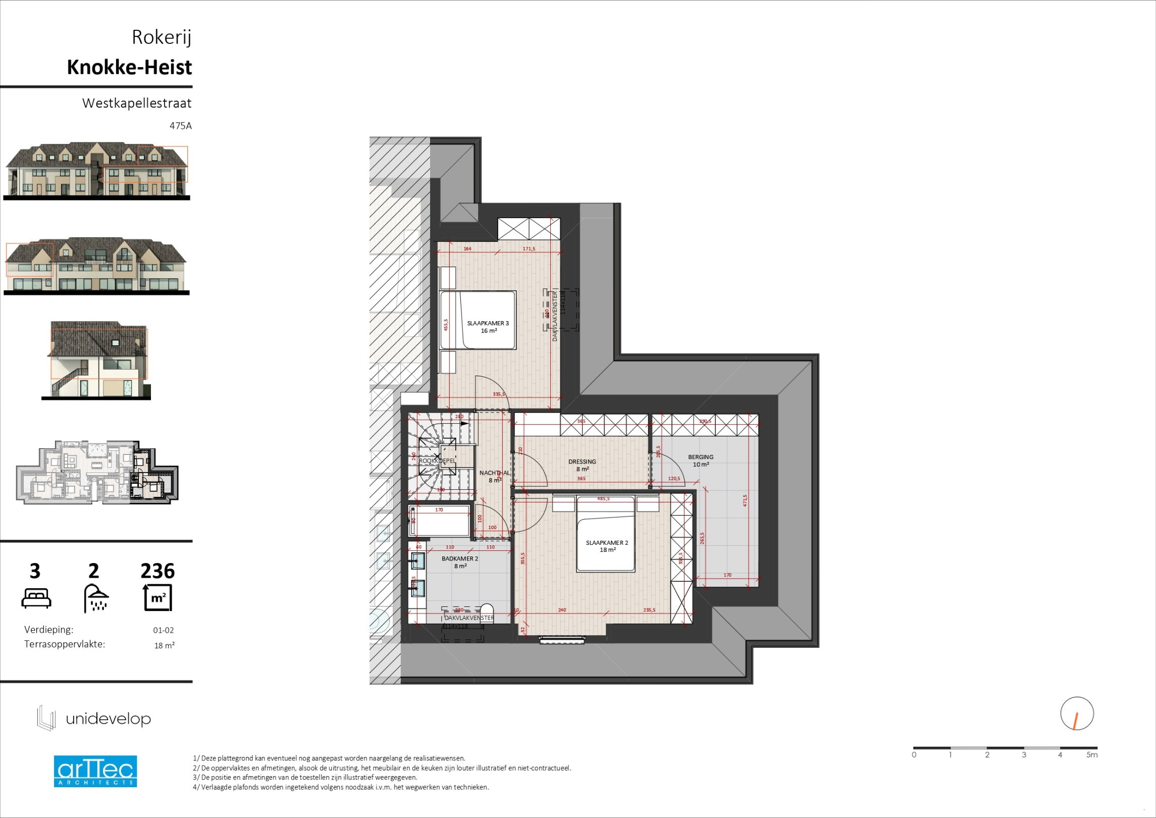
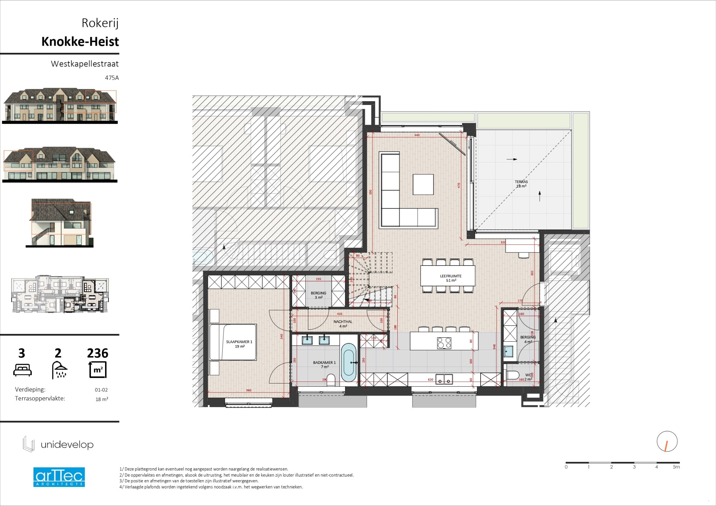
In de residentie Rokerij bevindt zich deze uitzonderlijk ruime stapelwoning met een bewoonbare oppervlakte van ca. 236 m². Deze eigendom onderscheidt zich door haar royale indeling, overvloed aan licht en aangename buitenruimte, en vormt een ideale woonoplossing voor wie op zoek is naar comfort en ruimte op een rustige, maar centrale locatie.

Via de private inkom krijgt u toegang tot de woning, die zich over twee volwaardige niveaus uitstrekt. De leefruimte is bijzonder ruim en open opgevat, met een mooie flow tussen zithoek, eetplaats en de open keuken. Dankzij de grote raampartijen geniet u hier van een aangename lichtinval en een directe verbinding met het ruime terras van ca. 18 m², waar het heerlijk vertoeven is in alle rust.

De woning beschikt over drie volwaardige slaapkamers en twee badkamers, aangevuld met een dressing en meerdere bergruimtes die zorgen voor extra functionaliteit. Met haar uitzonderlijke oppervlakte, doordachte indeling en gunstige ligging nabij het centrum van Westkapelle, vormt deze stapelwoning een unieke opportuniteit. Winkels, bakkers en restaurants bevinden zich op wandelafstand, terwijl u thuis geniet van rust en privacy. De mogelijkheid tot aankoop van een garage of staanplaats in het gebouw maakt dit aanbod compleet.

Meer informatie over dit project? Contacteer Willem Cauwels: 050/89.27.70

Algemeen

Adres:Knokke
Type:Woning
Beschikbaar vanaf:Bij oplevering
Perceeloppervlakte:255 m²
Bewoonbare opp.:236 m²
Bouwjaar:2026
Op verdieping:1

Indeling

Kamers:3
Slaapkamers:3
Badkamers:2
Woonkamer:Ja
Keuken:Ja, Open keuken, Ingericht met toestellen
Bijkeuken:Ja
Berging:Ja
Terras:19 m²
Wasplaats:Ja
Parking:Ja
Parking Types:Privé

Wettelijke gegevens

EPC Certificaat Nr.:EPB
EnergyClass:A
EPC E-peil:30,00
Stedenbouwkundige vergunning:Ja
Voorkooprecht:Neen
Verkavelingsvergunning van toepassing:Neen
Maatregelenregister:Neen
Stedenbouwkundige bestemming:Woongebied
Dagvaarding en herstelvordering:Geen rechterlijke herstelmaatregel of bestuurlijke maatregel opgelegd
Overstromingsgevoelig:Geen overstromingsgevoelig gebied
Overstromingsgebied:Geen afgebakende zones
Overstromingskans perceel (P-score):C
Overstromingskans gebouw (G-score):C
Erfgoed:Geen beschermd erfgoed

Prijs op aanvraag


U moet akkoord gaan met het privacybeleid van deze website
* Verplicht in te vullen

Prijs op aanvraag

Prijs op aanvraag