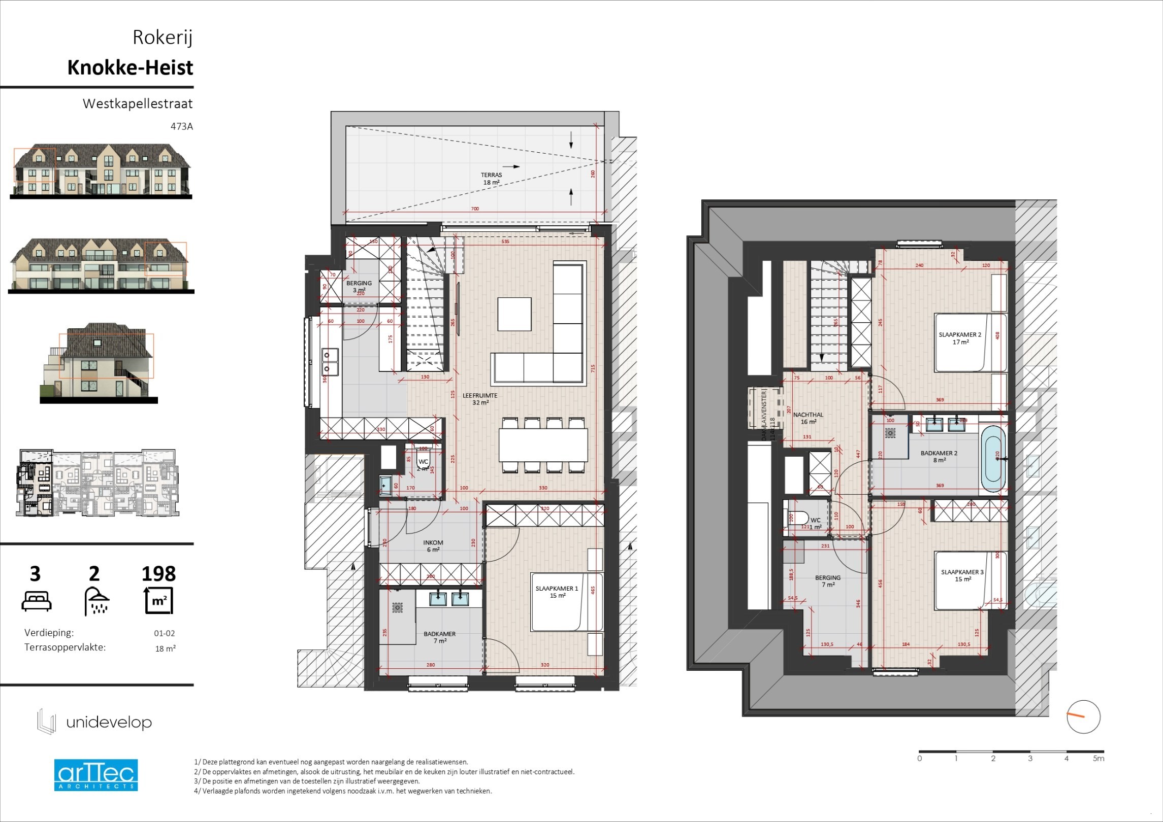
In residentie Rokerij, op een centrale en tegelijk rustige ligging nabij het dorpscentrum van Westkapelle, bevindt zich deze uitzonderlijk ruime duplex stapelwoning met een bewoonbare oppervlakte van maar liefst 198 m².

De woning beschikt over een private inkom, wat zorgt voor privacy en het comfort van een volwaardige woning. Op het eerste niveau bevindt zich de lichtrijke leefruimte met open keuken en bijkeuken, waar de royale oppervlaktes en grote raampartijen meteen in het oog springen. De leefruimte sluit aan op het aangename terras. Daarnaast bevindt er zich op dit niveau ook een eerste slaapkamer met aansluitende badkamer, ideaal als master bedroom of voor gasten.

Op de bovenverdieping komt u in de nachthal die toegang geeft tot twee ruime slaapkamers en een tweede badkamer. Tevens is er nog een ruime berging voorzien.

Dankzij de royale oppervlakte, de praktische indeling en de kwalitatieve afwerking vormt deze duplex stapelwoning een unieke woonopportuniteit aan de kust, met een perfecte balans tussen ruimte, comfort en ligging.

Er is bovendien de mogelijkheid tot aankoop van een staanplaats of garagebox binnen het gebouw.

Meer informatie over dit project? Contacteer Willem Cauwels: 050/89.27.70

Algemeen

Adres:Knokke
Type:Woning
Beschikbaar vanaf:Bij oplevering
Perceeloppervlakte:124 m²
Bewoonbare opp.:198 m²
Bouwjaar:2026
Op verdieping:1

Indeling

Kamers:3
Slaapkamers:3
Badkamers:2
Woonkamer:Ja
Keuken:Ja, Open keuken, Ingericht met toestellen
Bijkeuken:Ja
Berging:Ja
Terras:18 m²
Wasplaats:Ja
Parking:Ja
Parking Types:Privé

Wettelijke gegevens

EPC Certificaat Nr.:EPB
EnergyClass:A
EPC E-peil:30,00
Stedenbouwkundige vergunning:Ja
Voorkooprecht:Neen
Verkavelingsvergunning van toepassing:Neen
Maatregelenregister:Neen
Stedenbouwkundige bestemming:Woongebied
Dagvaarding en herstelvordering:Geen rechterlijke herstelmaatregel of bestuurlijke maatregel opgelegd
Overstromingsgevoelig:Geen overstromingsgevoelig gebied
Overstromingsgebied:Geen afgebakende zones
Overstromingskans perceel (P-score):C
Overstromingskans gebouw (G-score):C
Erfgoed:Geen beschermd erfgoed

Prijs op aanvraag


U moet akkoord gaan met het privacybeleid van deze website
* Verplicht in te vullen

Prijs op aanvraag

Prijs op aanvraag