Deze ruime gelijkvloerse stapelwoning in residentie Rokerij geniet van een rustige en tegelijk centrale ligging, op korte afstand van het dorpscentrum van Westkapelle.

De woning beschikt over een private inkom, wat zorgt voor een hoge mate van privacy en het gevoel van een volwaardige woning, zonder gemeenschappelijke circulatieruimtes.

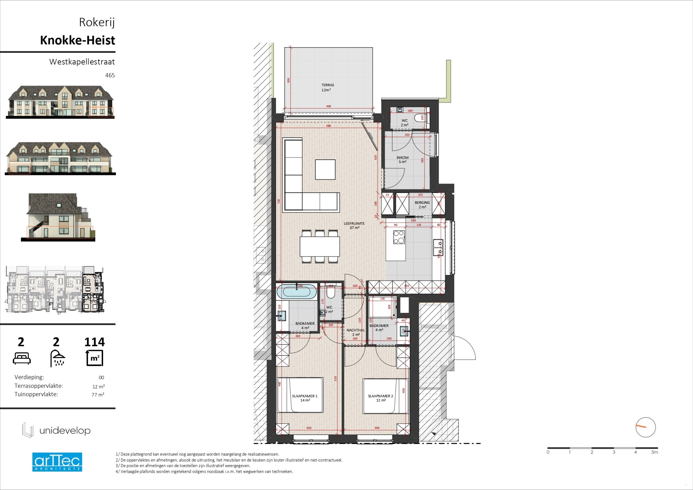
Via de inkomhal met gastentoilet betreedt u de leefruimte, die dankzij de grote raampartijen geniet van veel lichtinval. De open keuken sluit naadloos aan op de zithoek en eetplaats, en vormt samen met het terras en de privatieve tuin een aangename leefomgeving waar binnen en buiten mooi in elkaar overvloeien.

Verder beschikt de woning over twee volwaardige slaapkamers, elk met een eigen badkamer, wat bijdraagt aan het comfort en de functionaliteit van het geheel. Hierdoor is deze stapelwoning bijzonder geschikt voor vaste bewoning.

Daarnaast is er de mogelijkheid tot aankoop van een staanplaats of garagebox binnen het gebouw.

Deze woning biedt een ideale combinatie van rust, ruimte en bereikbaarheid, met een vlotte verbinding naar Knokke en op wandelafstand van het centrum van Westkapelle.

Meer informatie over dit project? Contacteer Willem Cauwels: 050/89.27.70

Algemeen

Adres:Knokke
Type:Woning
Beschikbaar vanaf:Bij oplevering
Perceeloppervlakte:191 m²
Bewoonbare opp.:114 m²
Bouwjaar:2026
Op verdieping:0

Indeling

Kamers:2
Slaapkamers:2
Badkamers:2
Woonkamer:Ja
Keuken:Ja, Open keuken, Ingericht met toestellen
Berging:Ja
Terras:12 m²
Wasplaats:Ja
Tuin breedte:7,7 m
Tuin diepte:10 m
Tuin oriëntatie:Oost
Tuin kwaliteit:Fraai aangelegd
Parking:Ja
Parking Types:Privé

Wettelijke gegevens

EPC Certificaat Nr.:EPB
EnergyClass:A
EPC E-peil:30,00
Stedenbouwkundige vergunning:Ja
Voorkooprecht:Neen
Verkavelingsvergunning van toepassing:Neen
Maatregelenregister:Neen
Stedenbouwkundige bestemming:Woongebied
Dagvaarding en herstelvordering:Geen rechterlijke herstelmaatregel of bestuurlijke maatregel opgelegd
Overstromingsgevoelig:Geen overstromingsgevoelig gebied
Overstromingsgebied:Geen afgebakende zones
Overstromingskans perceel (P-score):C
Overstromingskans gebouw (G-score):C
Erfgoed:Geen beschermd erfgoed

Prijs op aanvraag


U moet akkoord gaan met het privacybeleid van deze website
* Verplicht in te vullen

Prijs op aanvraag

Prijs op aanvraag