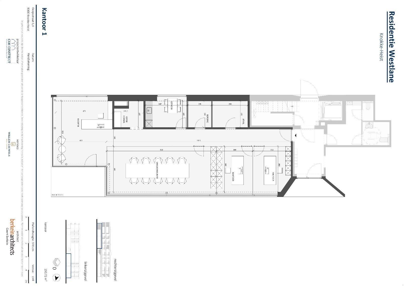
In de prestigieuze Residentie Westlane komt een ruime handelsruimte (151 m²) op het gelijkvloers te koop. Dankzij de ligging met een uitstekende zichtbaarheid vanaf de Natiënlaan is dit een absolute toplocatie voor wie wil ondernemen met uitstraling.

Het handelspand wordt casco aangeboden, waardoor u volledige vrijheid heeft om de ruimte in te richten volgens uw eigen concept. Er zijn reeds plannen beschikbaar met een mogelijke indeling, die inspiratie bieden voor een doordachte inrichting. Grote raampartijen zorgen voor een moderne uitstraling en maximale zichtbaarheid.

Voor klanten en bezoekers is er niet alleen publieke parkeergelegenheid in de nabije omgeving, maar ook de mogelijkheid om privéstaanplaatsen achter het gebouw bij aan te kopen. Bovendien bevindt zich naast de residentie een Fastnet laadpunt.

Dit handelspand biedt een uitstekende opportuniteit voor ondernemers die een stijlvolle en goed bereikbare locatie zoeken, of voor investeerders die kiezen voor een eigendom met sterke verhuurpotentie.

Meer informatie? Contacteer Wilem Cauwels Real Estate: 050/89.27.70

Algemeen

Adres:Knokke
Vraagprijs:€ 799.000
Type:Kantoor
Beschikbaar vanaf:Bij oplevering
Perceeloppervlakte:151 m²
Bouwjaar:2026
Op verdieping:0
Verhuurbare vloeroppervlakte:151 m²

Wettelijke gegevens

EPC Certificaat Nr.:EPB
EnergyClass:A+
Stedenbouwkundige vergunning:Ja
Voorkooprecht:Neen
Verkavelingsvergunning van toepassing:Neen
Stedenbouwkundige bestemming:Woongebied
Dagvaarding en herstelvordering:Geen rechterlijke herstelmaatregel of bestuurlijke maatregel opgelegd
Overstromingsgevoelig:Geen overstromingsgevoelig gebied
Overstromingsgebied:Geen afgebakende zones
Overstromingskans perceel (P-score):C
Overstromingskans gebouw (G-score):C
Erfgoed:Geen beschermd erfgoed

€ 799 000


U moet akkoord gaan met het privacybeleid van deze website
* Verplicht in te vullen

€ 799 000

€ 799 000