In de prestigieuze Residentie Westlane komt een ruime handelsruimte (133 m²) op het gelijkvloers te koop. Dankzij de ligging met een goede zichtbaarheid vanaf de Natiënlaan is dit een absolute toplocatie voor wie wil ondernemen met uitstraling.

Hoewel het pand rustig ligt aan de achterzijde, geniet u nog steeds van uitstekende toegankelijkheid. Extra troeven zijn de mogelijkheid tot aankoop van privéstaanplaatsen achter het gebouw en de publieke parking in de buurt, waardoor klanten en bezoekers eenvoudig kunnen parkeren. Ook het Fastnet laadpunt naast de residentie is een grote meerwaarde. Het pand ligt bovendien op wandelafstand van het centrum van Westkapelle, scholen en lokale handelaars, wat het aantrekkelijk maakt voor zowel commerciële als dienstverlenende activiteiten.

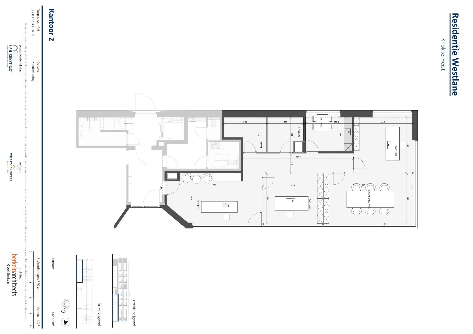
Dit pand wordt casco aangeboden, waardoor u volledige vrijheid heeft om de ruimte in te richten volgens uw eigen visie. De beschikbare indelingsplannen geven alvast inspiratie voor een efficiënte en functionele inrichting.

Dit handelspand biedt een uitstekende opportuniteit voor ondernemers die een stijlvolle en goed bereikbare locatie zoeken, of voor investeerders die kiezen voor een eigendom met sterke verhuurpotentie.

Meer informatie? Contacteer Wilem Cauwels Real Estate: 050/89.27.70

Algemeen

Adres:Knokke
Vraagprijs:€ 699.000
Type:Kantoor
Beschikbaar vanaf:Bij oplevering
Perceeloppervlakte:133 m²
Bouwjaar:2026
Op verdieping:0
Verhuurbare vloeroppervlakte:133 m²

Wettelijke gegevens

EPC Certificaat Nr.:EPB
EnergyClass:A+
Stedenbouwkundige vergunning:Ja
Voorkooprecht:Neen
Verkavelingsvergunning van toepassing:Neen
Stedenbouwkundige bestemming:Woongebied
Dagvaarding en herstelvordering:Geen rechterlijke herstelmaatregel of bestuurlijke maatregel opgelegd
Overstromingsgevoelig:Geen overstromingsgevoelig gebied
Overstromingsgebied:Geen afgebakende zones
Overstromingskans perceel (P-score):C
Overstromingskans gebouw (G-score):C
Erfgoed:Geen beschermd erfgoed

€ 699 000


U moet akkoord gaan met het privacybeleid van deze website
* Verplicht in te vullen

€ 699 000

€ 699 000