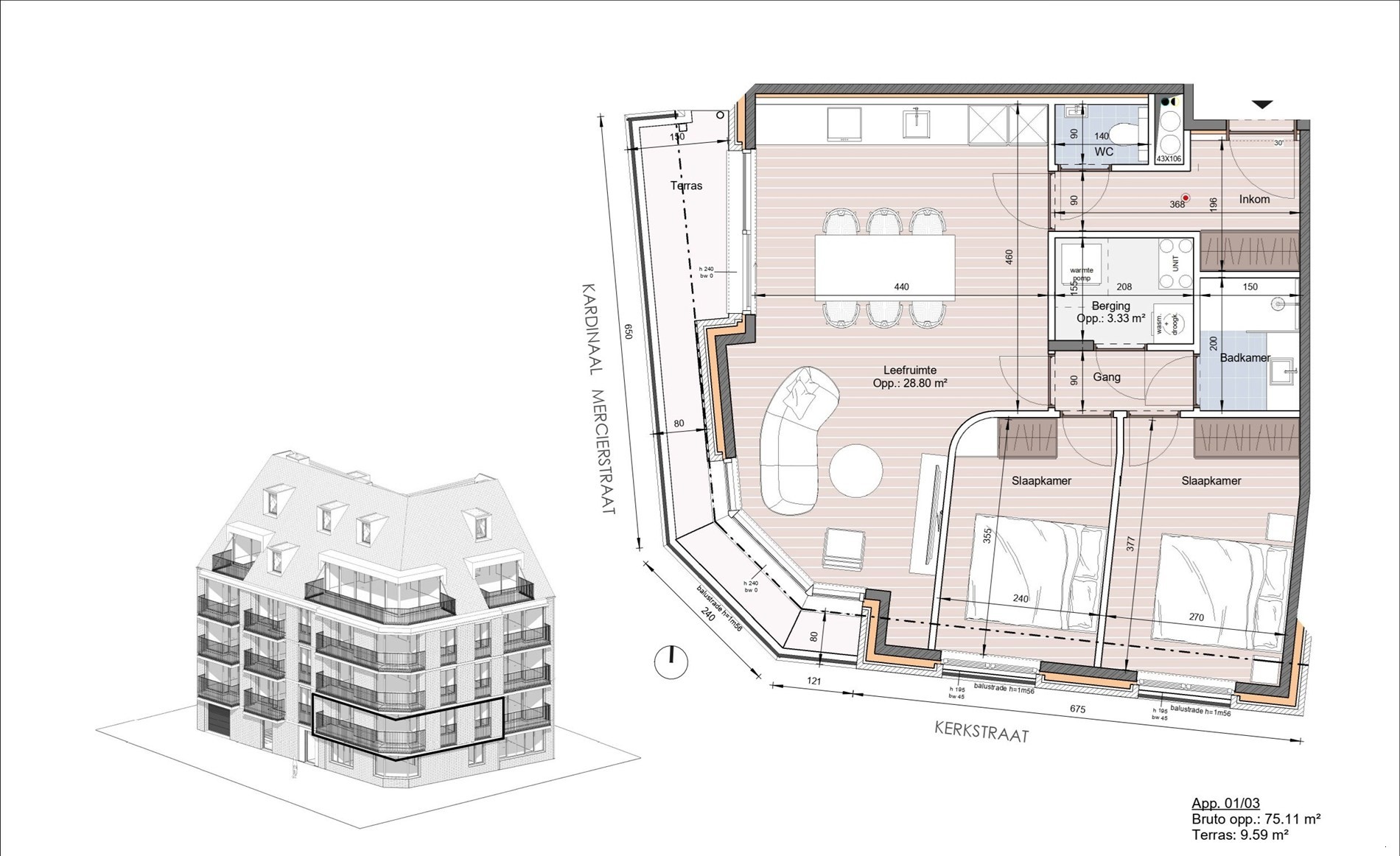
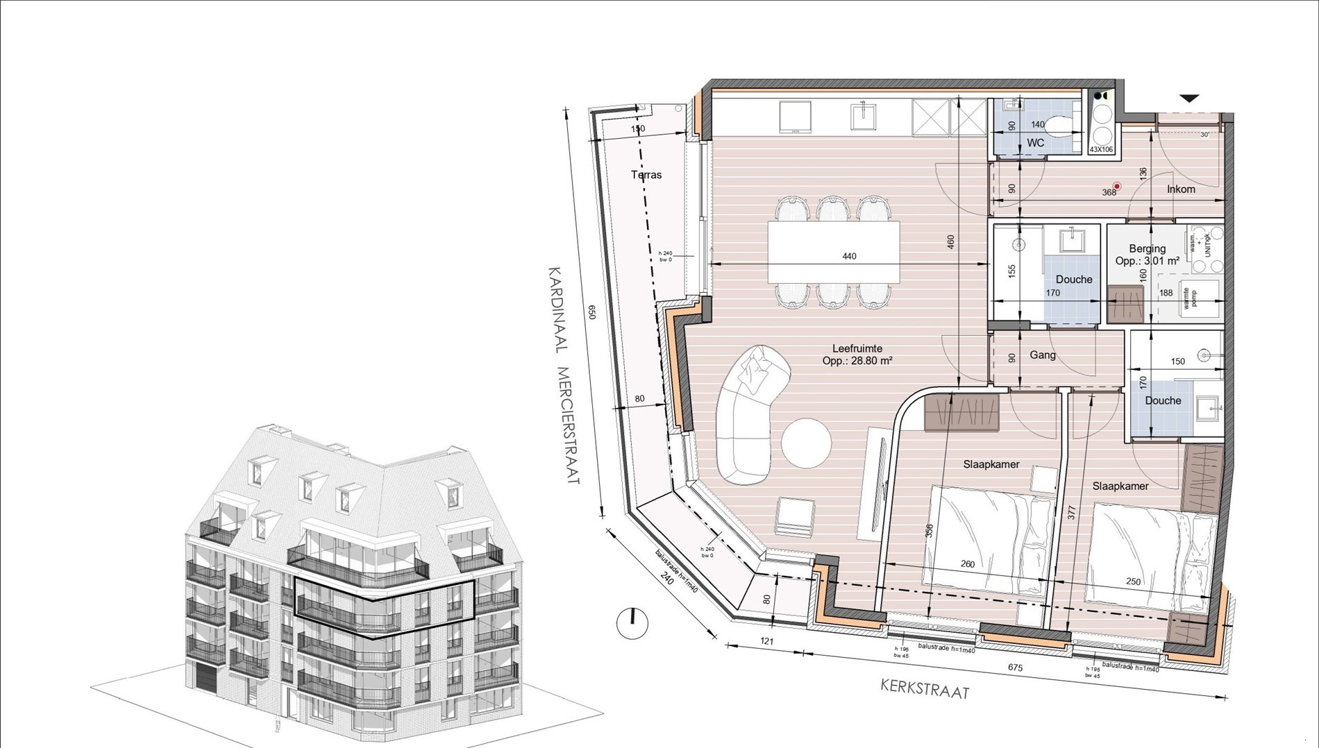
Ontdek dit lichtrijke hoekappartement, ideaal gelegen in de stijlvolle Residentie Antoine aan de Kursaalstraat te Heist, op wandelafstand van het strand, winkels en gezellige horeca.

De ruime en aangename leefruimte geniet van veel natuurlijke lichtinval dankzij de grote raampartijen en de unieke hoekligging. Aansluitend bevindt zich de open, volledig uitgeruste keuken met zicht op de eet- en zithoek. Vanuit de leefruimte heb je toegang tot het terras.

Het appartement beschikt over twee volwaardige slaapkamers, ideaal als hoofdverblijf, tweede verblijf of investering. Verder is er nog een badkamer voorzien met inloopdouche, een afzonderlijk toilet en een berging met aansluiting voor was- en droogmachine. Er is tevens de mogelijkheid om de indeling aan te passen zodoende er twee badkamers aanwezig zijn.

Gemeenschappelijke fietsenberging voorzien in het gebouw.

Meer informatie over deze unieke residentie? Contacteer Willem Cauwels: 050/89.27.70

Algemeen

Adres:Heist-aan-Zee
Vraagprijs:€ 405.000
Type:Appartement
Beschikbaar vanaf:Bij oplevering
Bewoonbare opp.:75 m²
Bouwjaar:2026
Op verdieping:1

Indeling

Kamers:2
Slaapkamers:2
Badkamers:1
Woonkamer:Ja
Keuken:Ja, Open keuken, Ingericht met toestellen
Berging:Ja
Terras:10 m²
Wasplaats:Ja

Wettelijke gegevens

EPC Certificaat Nr.:EPB
EnergyClass:A
EPC E-peil:30,00
Stedenbouwkundige vergunning:Ja
Voorkooprecht:Neen
Verkavelingsvergunning van toepassing:Neen
Maatregelenregister:Neen
Stedenbouwkundige bestemming:Woongebied
Dagvaarding en herstelvordering:Geen rechterlijke herstelmaatregel of bestuurlijke maatregel opgelegd
Overstromingsgevoelig:Geen overstromingsgevoelig gebied
Overstromingsgebied:Geen afgebakende zones
Overstromingskans perceel (P-score):A
Overstromingskans gebouw (G-score):A
Erfgoed:Geen beschermd erfgoed

€ 405 000


U moet akkoord gaan met het privacybeleid van deze website
* Verplicht in te vullen

€ 405 000

€ 405 000