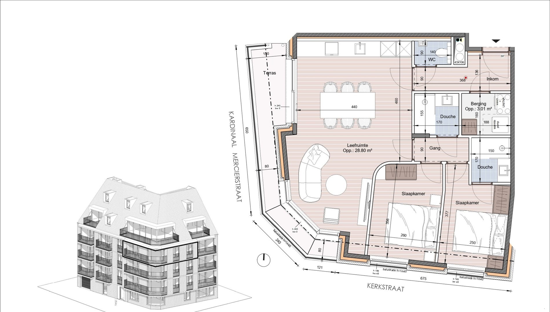
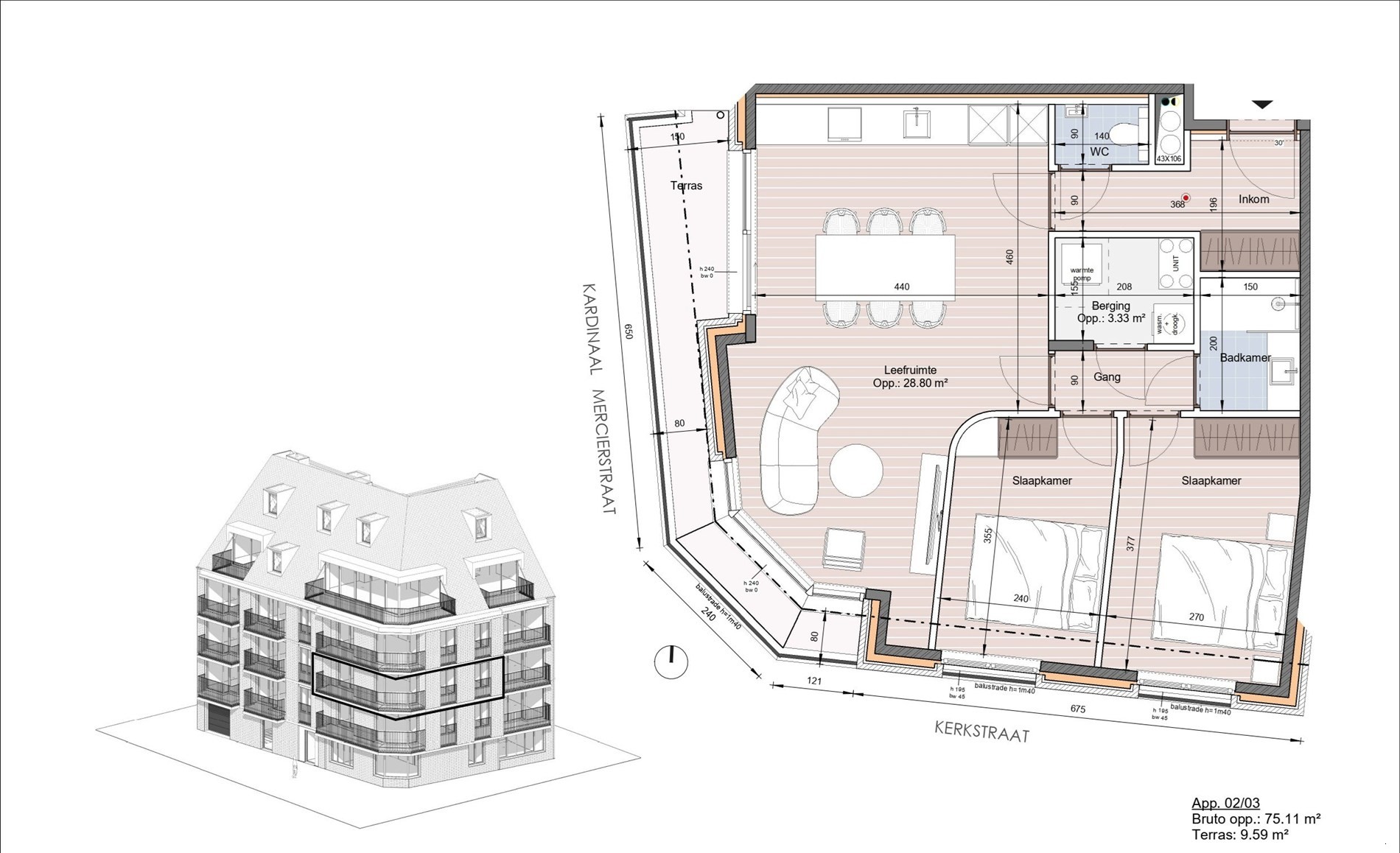
Ontdek dit aangename en lichtrijke hoekappartement, uitstekend gelegen in de stijlvolle Residentie Antoine aan de Kursaalstraat te Heist, op korte wandelafstand van het strand, winkels en tal van gezellige eet- en drinkgelegenheden.

De leefruimte voelt ruim en open aan en baadt in het natuurlijke licht dankzij de grote raampartijen en de gunstige hoekligging. De open, volledig ingerichte keuken sluit hier mooi op aan en vormt één harmonieus geheel met de eet- en zithoek. Aansluitend geeft de leefruimte uit op het terras.

Het appartement beschikt over twee volwaardige slaapkamers en is daardoor perfect geschikt als vaste woonst, tweede verblijf of interessante investering. Verder vindt u een moderne badkamer met inloopdouche, een apart toilet en een praktische berging met aansluiting voor was- en droogmachine. Er is tevens de mogelijkheid om de indeling aan te passen zodoende er twee badkamers aanwezig zijn.

Daarnaast is er in het gebouw een gemeenschappelijke fietsenberging aanwezig.

Interesse in dit appartement of meer info gewenst? Neem gerust contact op met Willem Cauwels via 050/89.27.70

Algemeen

Adres:Heist-aan-Zee
Vraagprijs:€ 415.000
Type:Appartement
Beschikbaar vanaf:Bij oplevering
Bewoonbare opp.:75 m²
Bouwjaar:2026
Op verdieping:2

Indeling

Kamers:2
Slaapkamers:2
Badkamers:1
Woonkamer:Ja
Keuken:Ja, Open keuken, Ingericht met toestellen
Berging:Ja
Terras:10 m²
Wasplaats:Ja

Wettelijke gegevens

EPC Certificaat Nr.:EPB
EnergyClass:A
EPC E-peil:30,00
Stedenbouwkundige vergunning:Ja
Voorkooprecht:Neen
Verkavelingsvergunning van toepassing:Neen
Maatregelenregister:Neen
Stedenbouwkundige bestemming:Woongebied
Dagvaarding en herstelvordering:Geen rechterlijke herstelmaatregel of bestuurlijke maatregel opgelegd
Overstromingsgevoelig:Geen overstromingsgevoelig gebied
Overstromingsgebied:Geen afgebakende zones
Overstromingskans perceel (P-score):A
Overstromingskans gebouw (G-score):A
Erfgoed:Geen beschermd erfgoed

€ 415 000


U moet akkoord gaan met het privacybeleid van deze website
* Verplicht in te vullen

€ 415 000

€ 415 000